Move Back
ADVERTISEMENT
Skip- Published4 Images
New York City's Skinniest House
Maybe form is more than function, it’s inspirational.
![75_5_Bedford_Skinny_Front_574x430]()
![75_5_Bedford_Skinny_kitchen_574x430]()
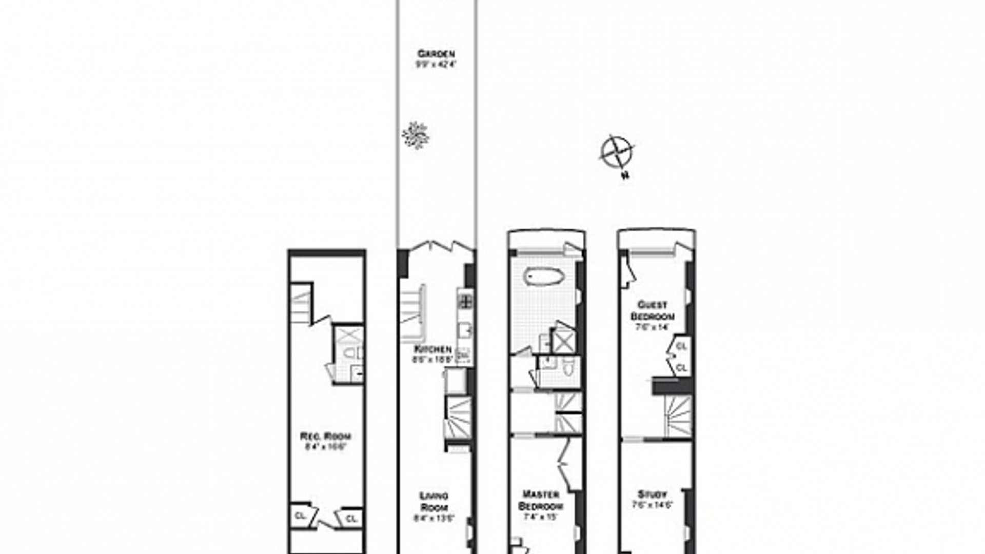
![75_5_Bedford_Skinny_plans_574x430]()
![75_5_Bedford_Skinny_plaque_Millay_574x430]()
- Published4 Images
New York City's Skinniest House
Maybe form is more than function, it’s inspirational.
Move Forward
- New York City's Skinniest House




Thumbnail View
Image 0 of 4



